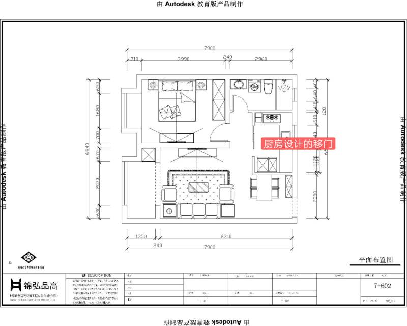
1、廚房間門按施工方案要求擴(kuò)大后,以合同上寫的是套裝門,不是移門為由,只弄了一個門框。裝修公司說他們所畫的布置圖上的移門只是格局圖,不做實際安裝方案。難道一個門框也是套裝門?
2、合同中第十條其它約定,客廳制作移門,陽臺晾衣架,送冰箱。在這些未完成的情況下,就要求驗收,付尾款。說不付尾款不做。
3、簽合同前,還說會保潔好,做環(huán)保測試完后,直接拎包入住,完全是忽悠。施工時間也超了。
歡迎來到上海裝潢網(wǎng)
差不多結(jié)束了
有一定的約束力

投訴詳情
相關(guān)評論(2)
寫評論處理進(jìn)展
處理階段
變更時間
上海地區(qū)的投訴
更多季度統(tǒng)計
更多>>年度統(tǒng)計
更多>>
(網(wǎng)友) 2019-08-20 16:46:44
翁** (投訴人) 2019-08-23 19:53:21